L’Impresa Biscontin S.p.A., forte di esperienza, competenza e qualità PROPONE un nuovo complesso residenziale, nel segno di una consolidata tradizione, concepito con i più avanzati criteri tecnologici.


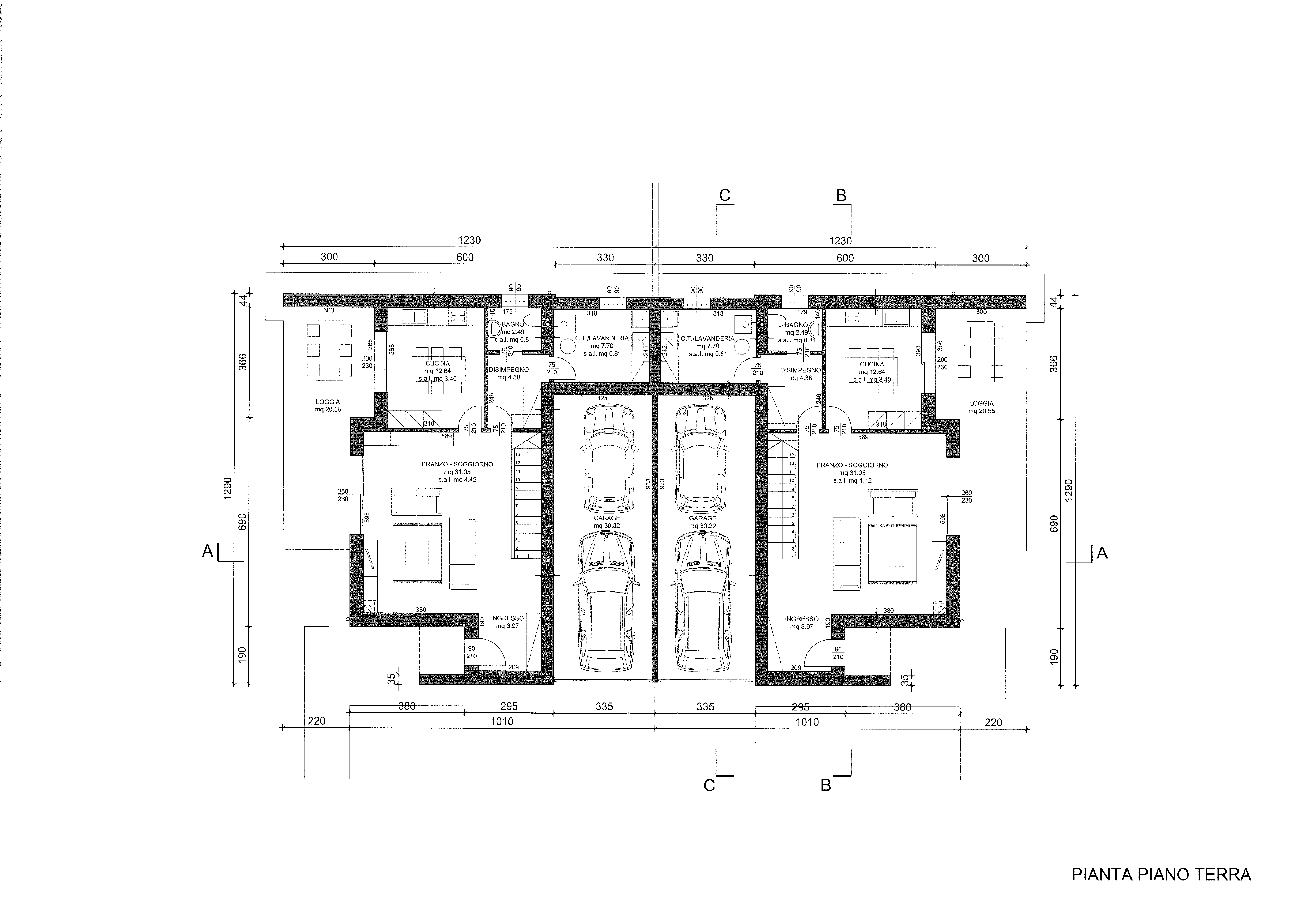
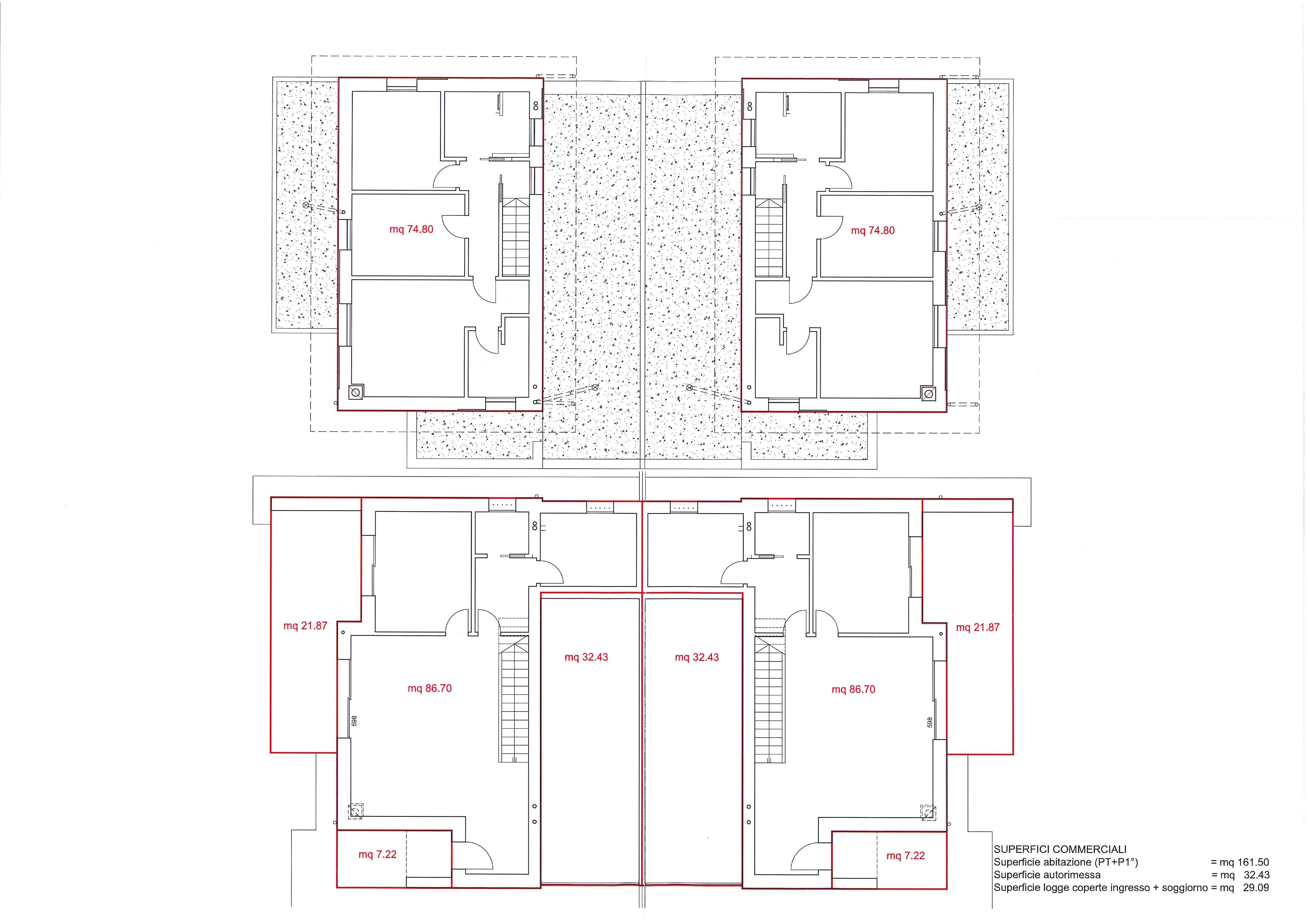
L’intervento riguarda la costruzione di due case abbinate di sagoma tradizionale, nel contempo contenente elementi moderni ed innovativi, l’edificio è dotato di un involucro altamente isolante in modo da contenere al massimo i consumi energetici, questo si sviluppa per la maggior parte in due piani fuori terra, solo la parte centrale, di collegamento tra le due unità abitative, rimane ad unico livello con tetto piano. Le case vengono realizzate completamente indipendenti tra loro.
Il fabbricato è dotato di impianti tecnologicamente all’avanguardia atti al contenimento energetico, oltre ad essere già provvisto di captatori di energia gratuita atti alla produzione di buona parte dell’energia necessaria alla conduzione del fabbricato stesso; questa viene prodotta, in forma gratuita, da pannelli fotovoltaici posti sopra la copertura per la produzione di energia elettrica. Per quanto riguarda la produzione di acqua calda sanitaria, questa viene prodotta dal sistema ibrido e cioè: dalla caldaia a gas, dalla pompa di calore alimentata da energia elettrica, oppure con resistenze elettriche nel serbatoio di accumulo (Bollitore) in modo da garantire sempre la produzione dell’acqua calda sanitaria.
Il primo livello è adibito principalmente a zona giorno, questo comprende un soggiorno, di adeguate dimensioni, una cucina abitabile con affaccio su loggia coperta, un disimpegno-guardaroba, una centrale termica che contiene il gruppo termico ibrido funzionante a gas metano ed a energia elettrica, unitamente a lavanderia, un wc a servizio della zona giorno al piano terra. Nella parte laterale, tra le due abitazioni, trovasi l’autorimessa di capienza per due auto oltre a spazio per biciclette ed attrezzi da giardino.
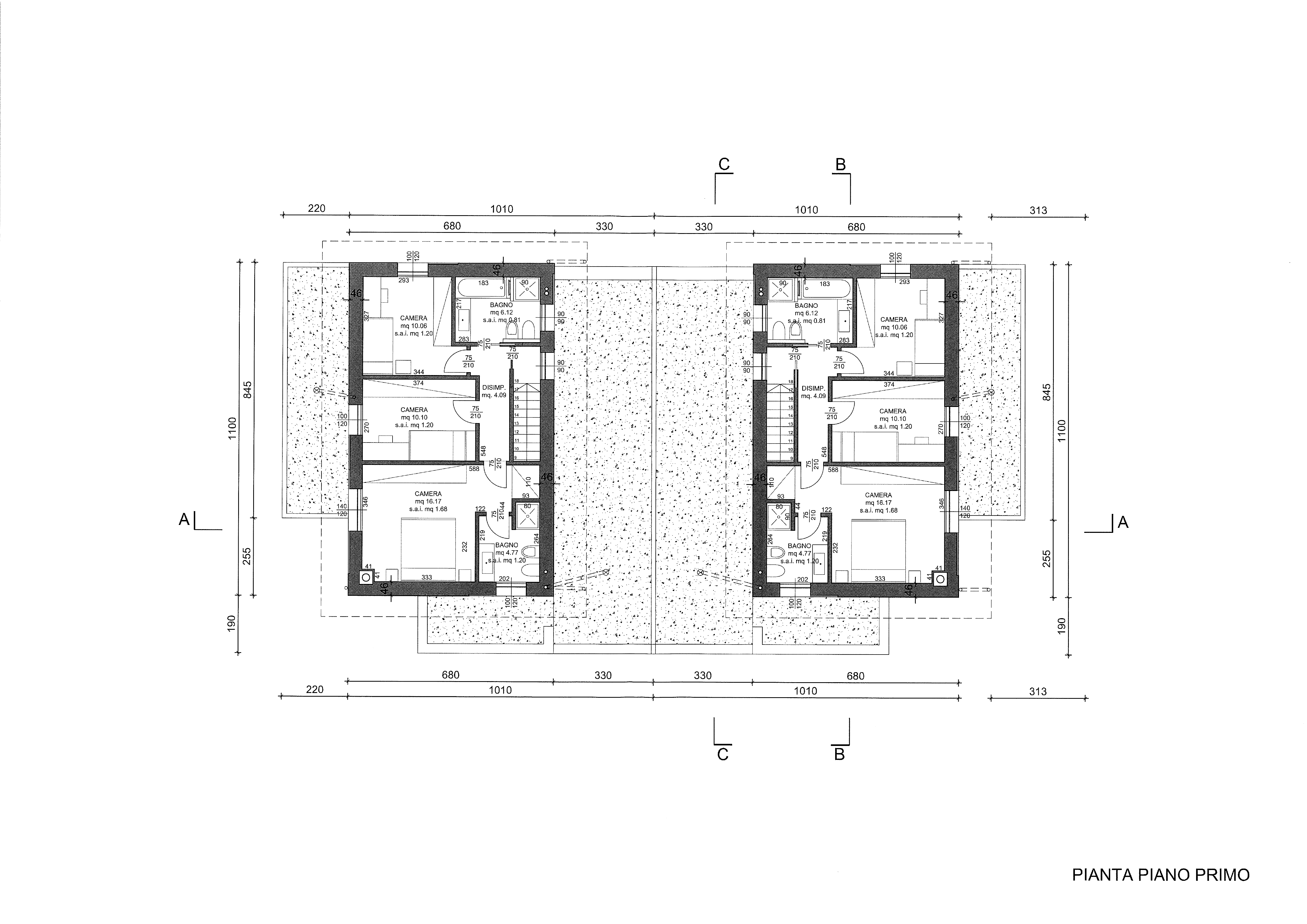
Il secondo livello, al quale si accede tramite scala in c.a. rivestita in legno che rimane a vista dal salotto, viene adibito a zona notte e comprende: una camera padronale con bagno doccia ad uso esclusivo, due camere di grandezza media con annesso bagno doccia a servizio delle stesse.
Per la realizzazione dell’edificio vengono impiegati materiali con ridottissime emissioni nocive e tecnologie d’avanguardia, frutto della continua ricerca svolta dall’Impresa Biscontin S.p.A., in collaborazione con professionisti specializzati che, oltre a curare sempre di più il lato estetico, tende a migliorare il comfort abitativo ed aumentare la longevità dell’immobile, riuscendo a ridurre al minimo i costi di gestione l’edificio che risulta ricompreso nella classificazione ergetica “A di 4^”, quindi quasi passiva.













